Каминная топка Lacunza IF 800
771ff1b65634
Доставка в Красноярск
Удобство оплаты
Почему звонить в Очаг уже сейчас?
- Единая цена по всей России
- Бесплатная доставка
- Понимаем любой бюджет
- Считаем ВСЕ варианты
- Инструкции и видео для Монтажа
- Доступно, Оперативно, Профессионально
- Более 2 000 монтажей за 17 лет
Примеры работ #Степан_Знает
Видео галерея
Описание
Характеристики
Общие
Производитель:
Lacunza
Страна-производитель:
Испания
Остекление:
Материал корпуса:
Материал топки:
- Вермикулит
Конструкция топки:
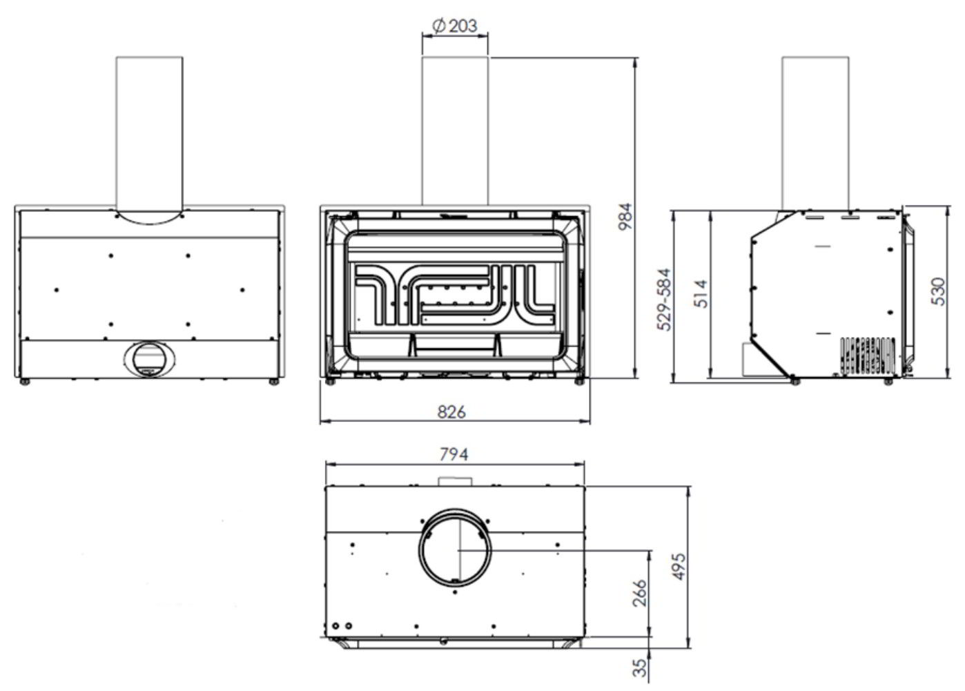
Размеры
Диаметр дымохода:
200 мм
Общая ширина:
826 мм
Общая глубина:
495 мм
Общая высота:
518 мм
Общий вес:
155 кг
Высота рамки:
290 мм
Ширина рамки:
580 мм
Производительность
Мощность:
9 кВт
КПД:
76%
Площадь отопления:
90 м²
Объем отопления:
225 м³
Использование для отопления:












