Каминная топка Schmid Lina 8757 h
4ece799f3dc1
Доставка в Красноярск
Удобство оплаты
Почему звонить в Очаг уже сейчас?
- Единая цена по всей России
- Бесплатная доставка
- Понимаем любой бюджет
- Считаем ВСЕ варианты
- Инструкции и видео для Монтажа
- Доступно, Оперативно, Профессионально
- Более 2 000 монтажей за 17 лет
Примеры работ #Степан_Знает
Видео галерея
Описание
Характеристики
Общие
Производитель:
Страна-производитель:
Германия
Остекление:
Материал корпуса:
Материал топки:
- Шамот
Конструкция топки:
Стекло с подъемом вверх:
Да
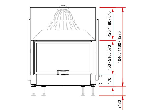
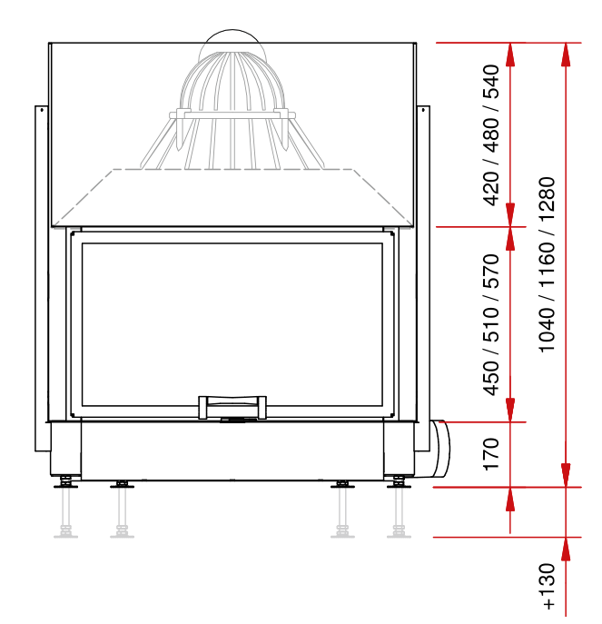
Размеры
Диаметр дымохода:
200 мм
Общая ширина:
960 мм
Общая глубина:
520 мм
Общая высота:
1280 мм
Общий вес:
320 кг
Высота рамки:
570 мм
Ширина рамки:
870 мм
Производительность
Мощность:
10 кВт
КПД:
78%
Площадь отопления:
100 м²
Объем отопления:
250 м³
Использование для отопления:












