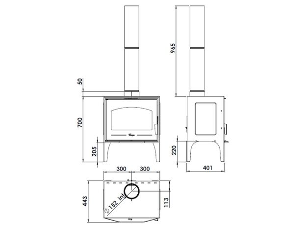
Печь-камин Lacunza Calpe
eec2a3f50cb5
Доставка в Красноярск
Удобство оплаты
Почему звонить в Очаг уже сейчас?
- Единая цена по всей России
- Бесплатная доставка
- Понимаем любой бюджет
- Считаем ВСЕ варианты
- Инструкции и видео для Монтажа
- Доступно, Оперативно, Профессионально
- Более 2 000 монтажей за 17 лет
Примеры работ #Степан_Знает
Видео галерея
Описание
Характеристики
Общие
Производитель:
Lacunza
Страна-производитель:
Испания
Материал отделки:
Материал топки:
- Вермикулит
Производительность
Мощность:
12 кВт
КПД:
85%
Площадь отопления:
120 м²
Объем отопления:
300 м³
Использование для отопления:












